Descripción del inmueble

Piso 1B

 

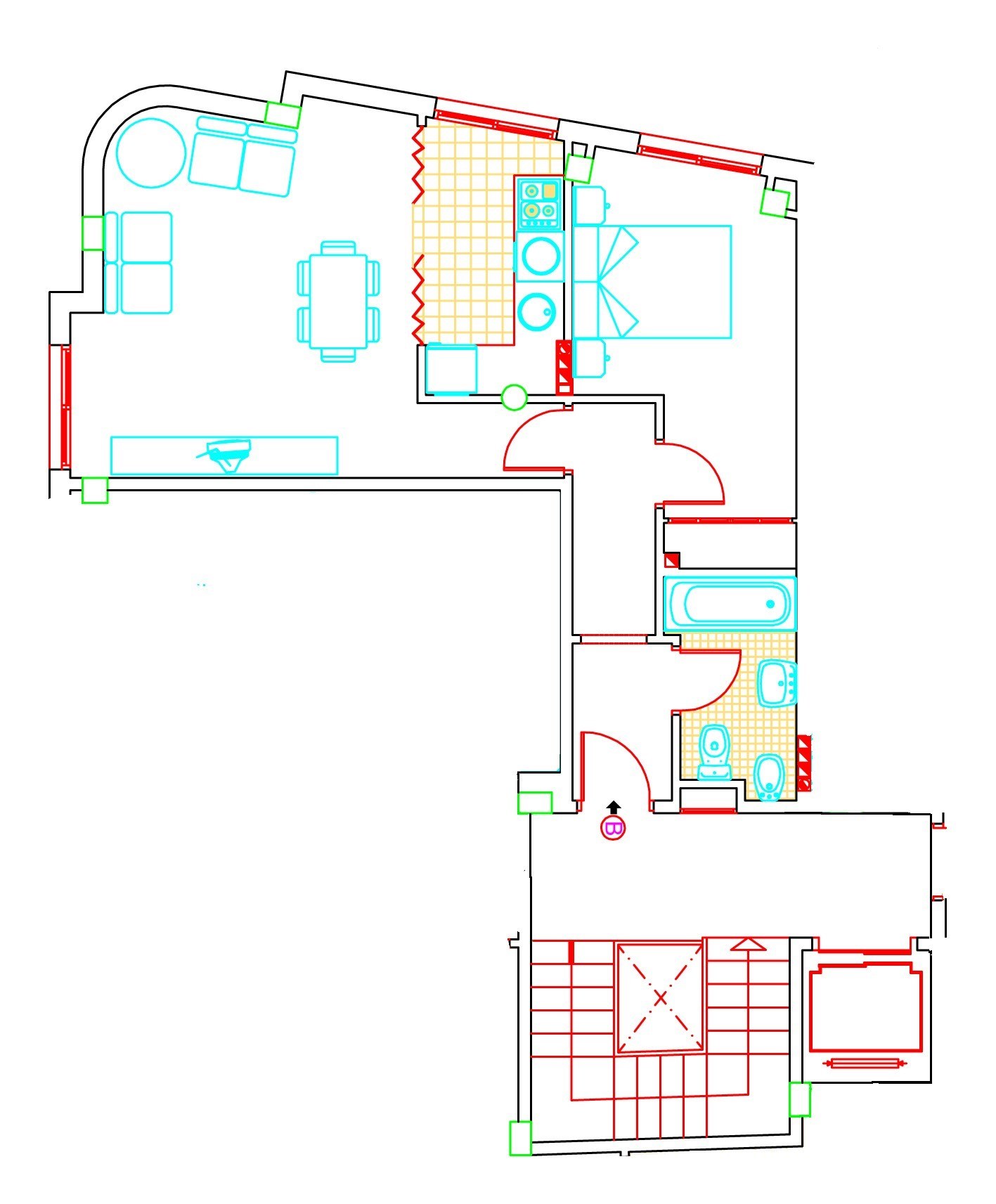
VIVIENDA tipo B, en planta primera, que ocupa una superficie construida de sesenta metros y sesenta y ún decímetros cuadrados, -útil 44,15 m2-. Se compone de salóncomedor, cocina, dormitorio y baño. 
Linda la vivienda: derecha entrando, vivienda tipo A de esta planta; izquierda, vivienda tipo C de esta planta y calle Miguel de Cervantes; frente, pasillo de acceso y vivienda tipo C de esta planta; y fondo, calle Juan de Austria. -------------------

Además le corresponde vinculado a ella, el cuarto trastero en planta cubierta señalado con el número 4, con una superficie construida de ocho metros cuadrados, - útil 7,15 m2-. -----------
Linda el trastero: derecha entrando, trastero número 3; izquierda, trastero número 5; frente, zona común; y fondo, calle Juan de Austria. ------------

Primero A

Sup. Útil 59,40 m2

Sup. Const. 81,54 m2

Trastero 8,00 m2

Renta: 480,00 €/mes